13428 Mohawk RD Apple Valley, CA 92308

UPDATED:
Key Details
Property Type Multi-Family
Sub Type Triplex
Listing Status Active
Purchase Type For Sale
MLS Listing ID CV25112625
HOA Y/N No
Year Built 1989
Property Sub-Type Triplex
Property Description
Location
State CA
County San Bernardino
Area Appv - Apple Valley
Interior
Heating Central
Cooling Central Air
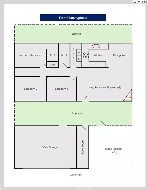
Fireplaces Type Living Room
Fireplace Yes
Laundry Laundry Room
Exterior
Parking Features Concrete, Direct Access, Garage, Garage Faces Side, Storage
Garage Spaces 6.0
Garage Description 6.0
Pool None
Community Features Suburban
Total Parking Spaces 9
Private Pool No
Building
Lot Description Front Yard, Street Level
Story 1
Entry Level One
Sewer Septic Tank
Water Private
Level or Stories One
New Construction No
Others
Senior Community No
Tax ID 3087311050000
Acceptable Financing 1031 Exchange
Listing Terms 1031 Exchange
Special Listing Condition Standard






